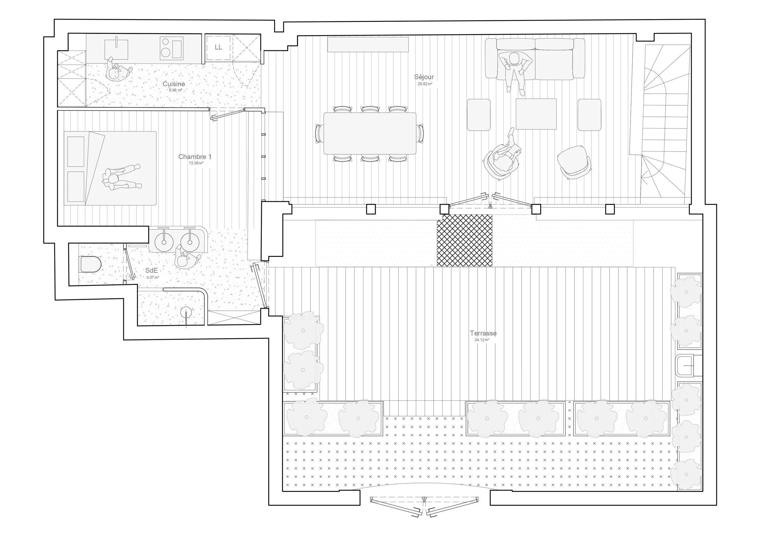
Capucines
Transformation lourde d’un local commercial sur cour en logement en duplex. Création de puits de lumière, aménagement intérieur et extérieur.
Client : H&C / Surface : 90m2 / Phases : mission complète / Entreprise : CARPAT renov
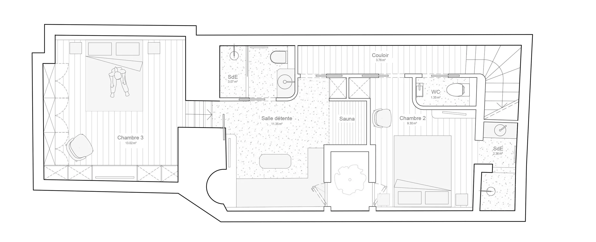
Transformation lourde d’un local commercial sur cour en logement en duplex. Création de puits de lumière, aménagement intérieur et extérieur.
Client : H&C / Surface : 90m2 / Phases : mission complète / Entreprise : CARPAT renov