Guitel
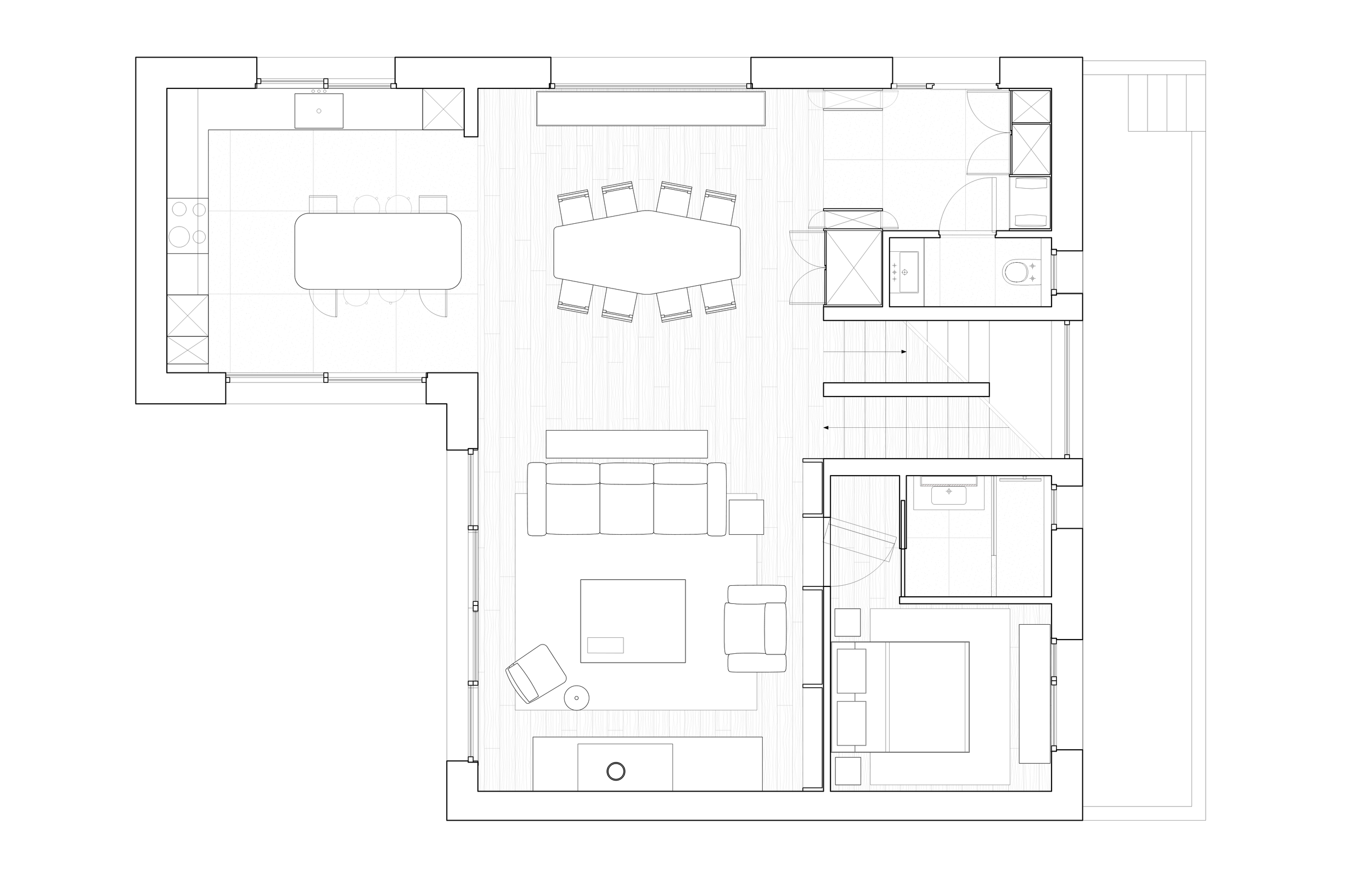
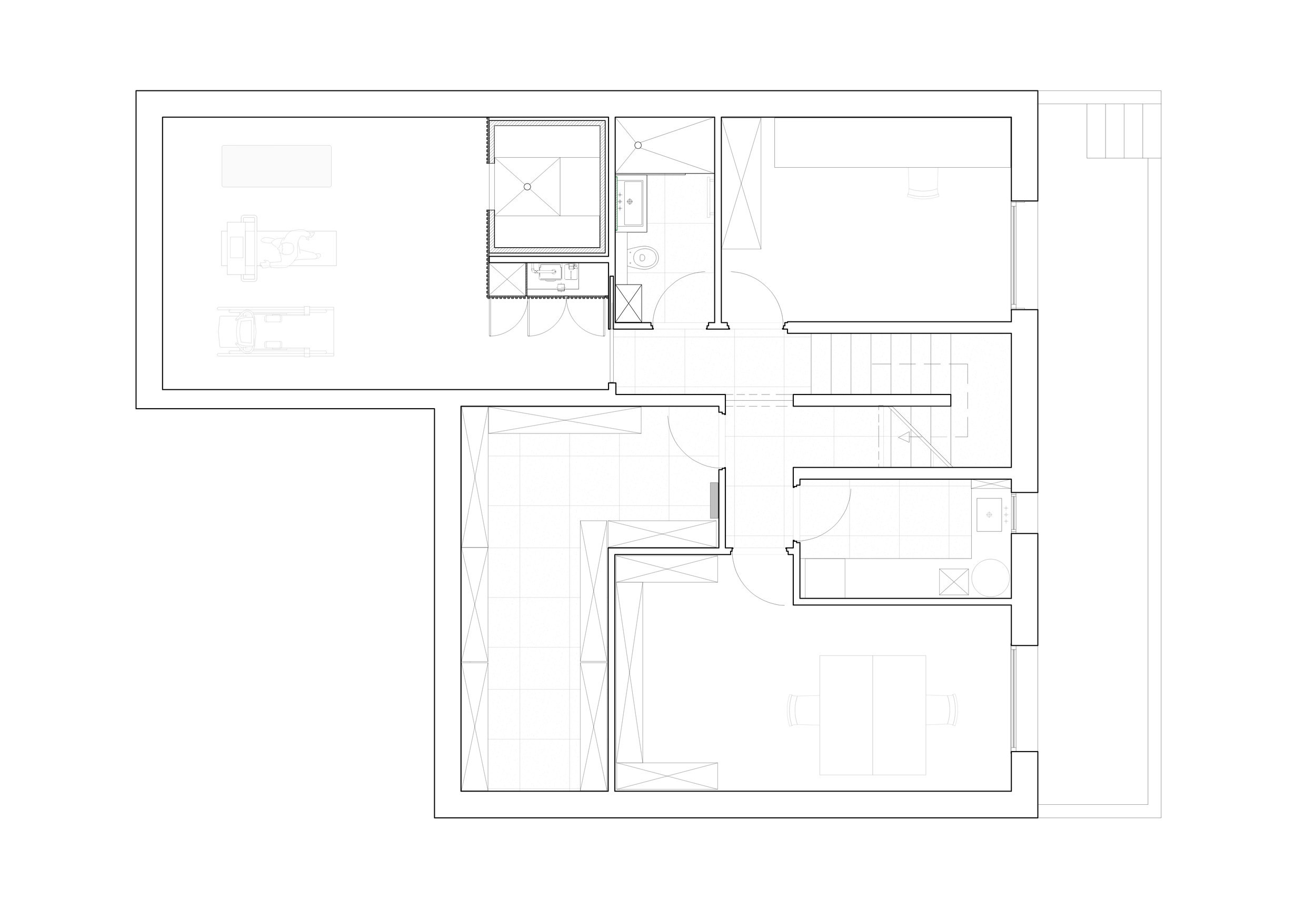
Agencements intérieurs d’une maison en construction à saint nom la bretèche. Cuisine, menuiseries sur mesure en noyer, pièce cachée dans la bibliothèque
Client : particuliers / Surface : 300m2 / Mission : complète intérieurs / Entreprises : ALTEA BTP / Menuiseries : G&D ateliers / Électricien : Longuet / Cuisine : Bouedec



