Guy Môquet
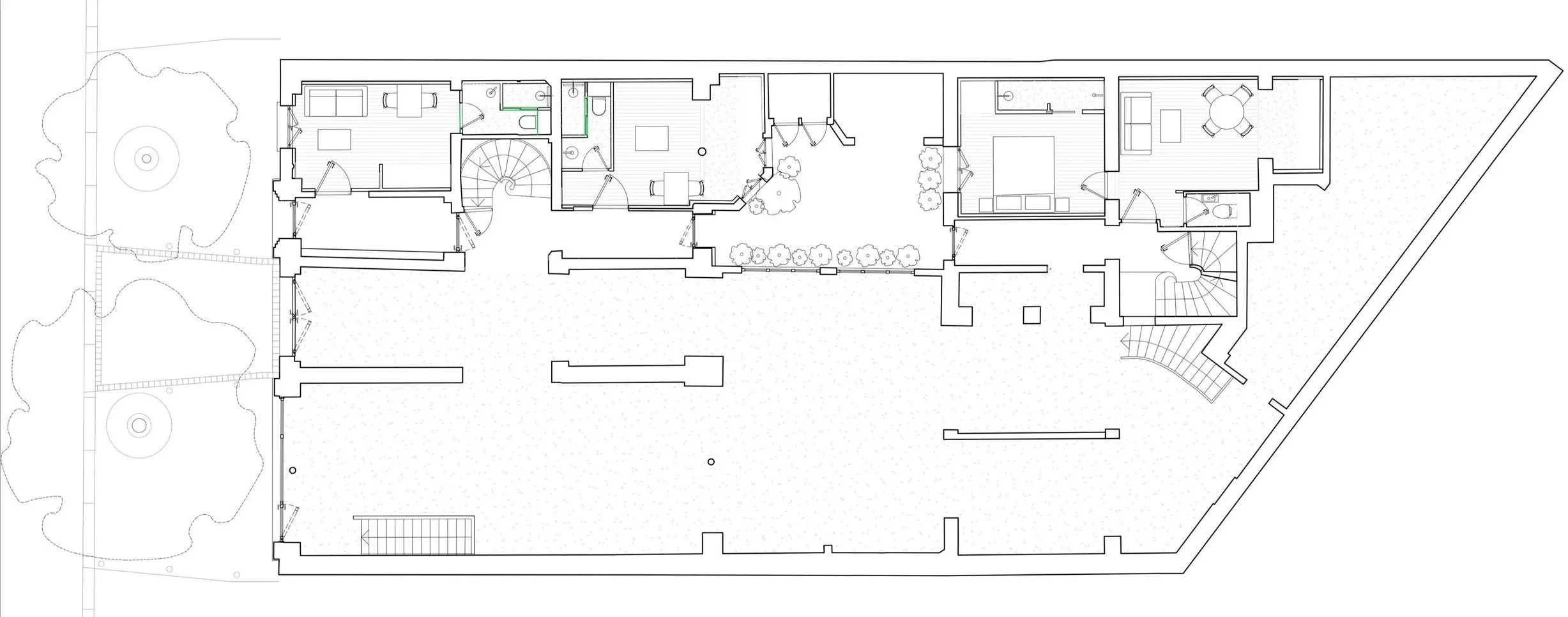
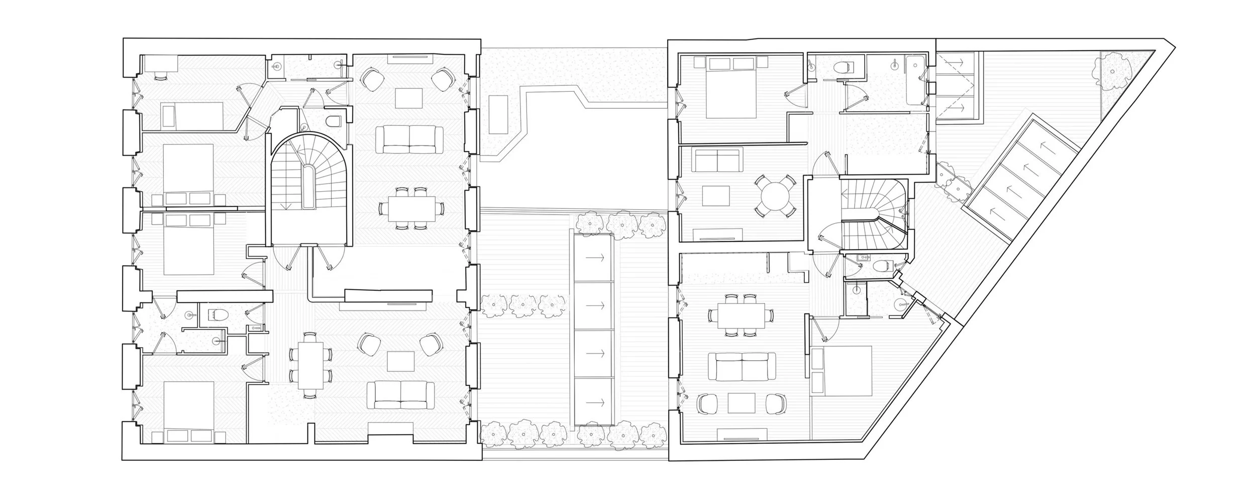
Rénovation lourde d’une copropriété, comprenant 7 logements et un local commercial. Redistribution des appartements, mise en œuvre de parquets massifs réemployés, création de terrasses végétalisées, aménagement des parties communes, assainissement des caves, création de verrières en toitures, réfection complète des toitures et façades.
Client : NC / Surface : 500 + 300m2 / Phases : mission complète / Bc : Aleatec / Bet structure : Oregon Entreprises : G&D concepts / Verrières : Serrurie Blonde





